
Pièces
1 pièce
Surface
25 m²
Consommation énergétique
Émissions de gaz à effet de serre
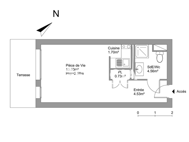
LOCATION 100% EN LIGNE ! A LOUER - T1 MEUBLE PESSAC CENTRE Proche gare et tramway ligne B, dans une résidence T1 meublé comprenant une pièce de vie avec kitchenette, une salle d'eau avec wc et une terrasse. Eau et chauffage collectifs. Cete location se fera uniquement par le biais de notre service MA LOCATION FACILE 100% en ligne (dépôt du dossier / visite en ligne / signature du bail à distance). Ce logement est loué meublé.
Source
Foncia
Publié le
17 avril 2026
Vue pour la dernière fois
il y a 9 heures