




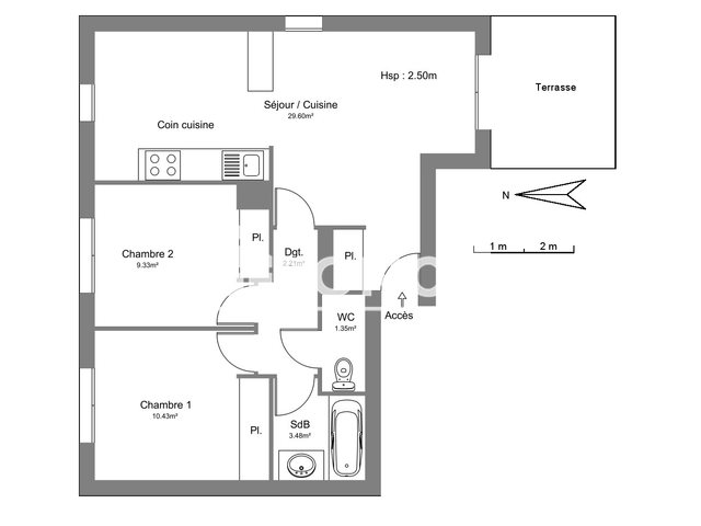
Pièces
3 pièces
Surface
56 m²
Terrasse
Oui
Consommation énergétique
A 15 minutes du centre de Tarbes dans une résidence récente et sécurisée, un bel appartement avec terrasse et parkings privatifs. Il comprend: une entrée, un séjour, une cuisine aménagée, 2 chambres, une salle de bains et un wc.
Source
Fr
Publié le
19 février 2026
Vue pour la dernière fois
il y a 10 heures