




Pièces
1 pièce
Surface
29 m²
Consommation énergétique
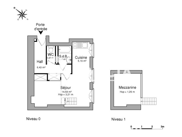
Location sur visite virtuelle uniquement.Studio non meublé.Idéalement situé dans le quartier animé de Montchat, vous profiterez de tous les commerces et services de proximité que cette zone recherchée propose.Cet appartement T1 vous séduira par son agencement fonctionnel au sein d'un petit immeuble de caractère.L'espace se compose d'une entrée accueillante, d'une pièce principale lumineuse avec un coin cuisine équipé prêt à l'emploi. Le logement bénéficie également d'une mezzanine offrant un espace supplémentaire appréciable, ainsi que d'une salle de bains et de Wc indépendants. Le chauffage électrique individuel vous garantit une parfaite autonomie.N'hésitez pas à déposer votre dossier sur notre site internet Foncia au plus vite.
Source
Fr
Publié le
29 janvier 2026
Vue pour la dernière fois
il y a 10 heures