




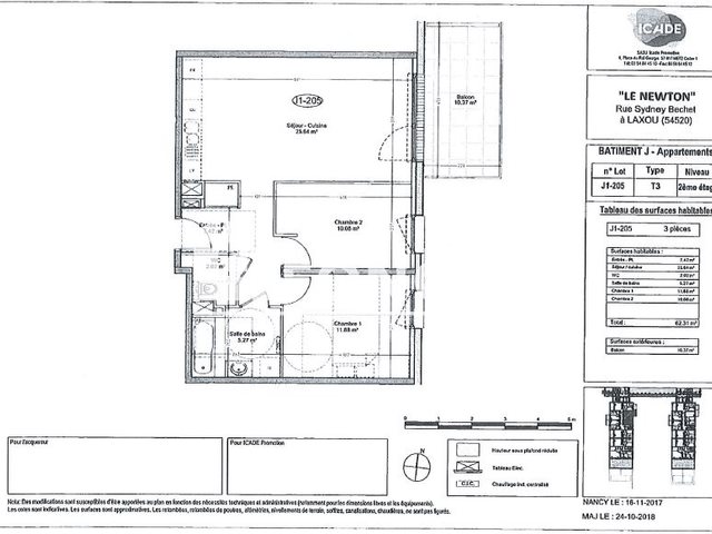
Pièces
3 pièces
Surface
62 m²
Balcon
Oui
Consommation énergétique
Sur les hauteurs de laxou.proche des axes routiers et du centre commercial de la sapinière. Dans un bel ensemble d' immeubles neufs.bel appartement 3 pièces comprenant:entrée,cuisine équipée sur salon,2chambres,salle de bains,wc.balcon
Source
Fr
Publié le
24 février 2026
Vue pour la dernière fois
il y a 4 heures