




Pièces
3 pièces
Surface
86 m²
Consommation énergétique
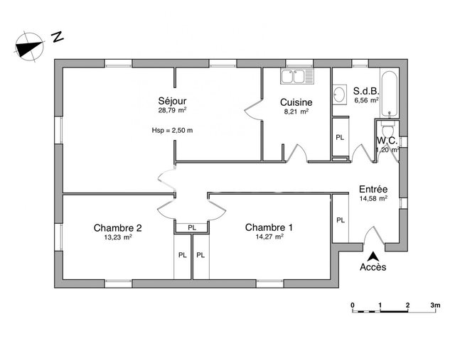
Situé à Le Luc, cet appartement au premier étage se compose de :une entrée, deux chambres avec placard, un séjour, une cuisine, une salle de bains, un Wc indépendant.Une cour privative ainsi qu?un garage complètent ce bien.Appartement fonctionnel, idéal pour une famille ou un couple
Source
Fr
Publié le
2 mars 2026
Vue pour la dernière fois
il y a 23 heures