




Pièces
2 pièces
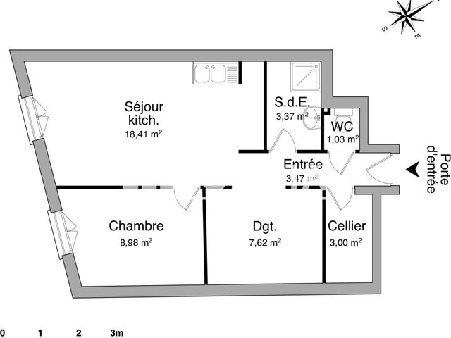
Surface
45 m²
Consommation énergétique
A deux pas des quais, dans une maison : appartement type 2 sis au 2ᵉ étage, très ensoleillé, avec grand dressing, doté d'une cuisine, un séjour, une chambre, une salle de bains et un wc. Chauffage individuel électrique.Un cabanon ( premier à droite)
Source
Fr
Publié le
7 février 2026
Vue pour la dernière fois
il y a 7 heures