




Pièces
1 pièce
Surface
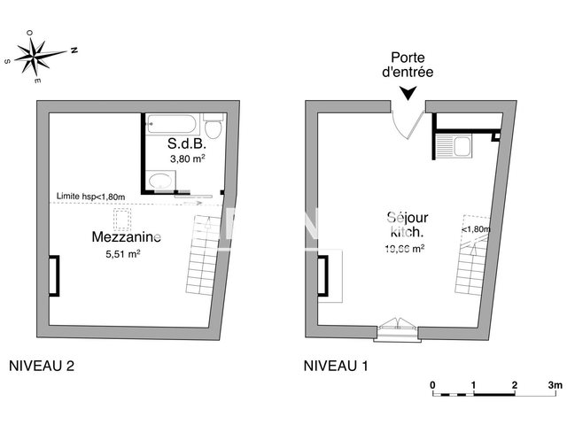
28 m²
Consommation énergétique
Quartier Vauban, petit immeuble familial, appartement en duplex entièrement rénové comprenant un séjour avec coin cuisine aménagé, une chambre en mezzanine, une salle d'eau avec Wc. Logement entièrement climatisé.
Source
Fr
Publié le
10 janvier 2026
Vue pour la dernière fois
il y a 1 jour