




Pièces
2 pièces
Surface
40 m²
Parking
Oui
Terrasse
Oui
Consommation énergétique
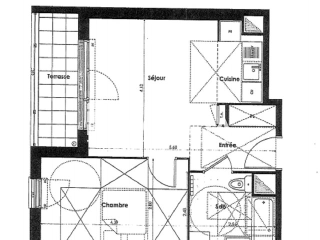
Dans résidence neuve, appartement 2p avec terrasse, offrant : une entrée, un séjour avec cuisine équipée, une chambre, une salle de bains avec wc. Un emplacement de parking en sous-sol.
Source
Fr
Publié le
28 janvier 2026
Vue pour la dernière fois
il y a 8 heures