




Pièces
2 pièces
Surface
43 m²
Consommation énergétique
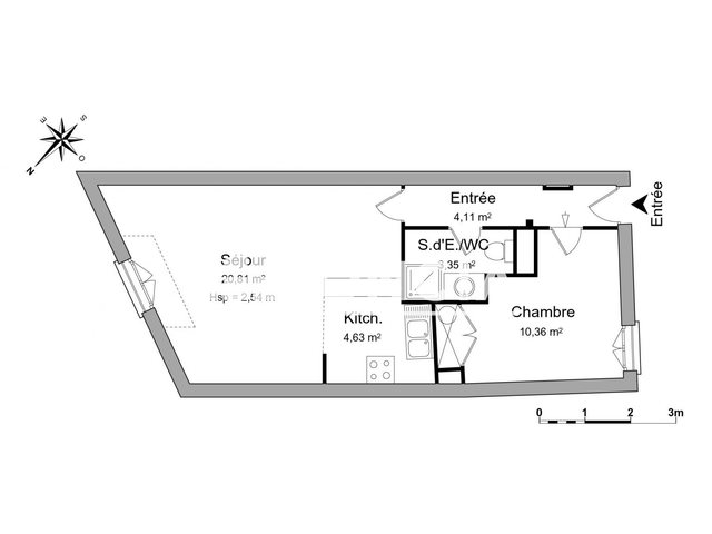
Charmant T2 avec cuisine équipée à deux pas de la Place des BancsNiché dans un petit immeuble à proximité immédiate de la Place des Bancs, cet appartement T2 offre un cadre de vie pratique et fonctionnel. Vous apprécierez son agencement optimisé comprenant une entrée accueillante, un séjour lumineux prolongé par une cuisine entièrement équipée.La partie nuit se compose d'une chambre avec placard intégré pour un rangement optimal, ainsi que d'une salle d'eau avec Wc. La localisation privilégiée de ce bien vous permet d'accéder facilement à tous les commerces environnants pour votre plus grand confort au quotidien.N'hésitez pas à déposer votre dossier sur notre site internet Foncia au plus vite.
Source
Fr
Publié le
21 janvier 2026
Vue pour la dernière fois
il y a 8 heures