




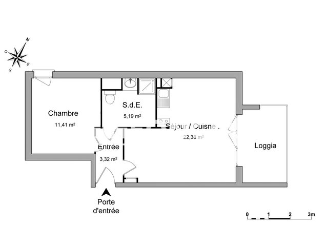
Pièces
2 pièces
Surface
42 m²
Consommation énergétique
A Balma proche des commerces, des écoles de la rocade et des bus, dans belle résidence, appartement de type 2 comprenant une entrée, un séjour avec cuisine, une chambre, une salle d'eau avec wc, une loggia.
Source
Fr
Publié le
21 février 2026
Vue pour la dernière fois
il y a 11 heures