



Pièces
2 pièces
Surface
49 m²
Cave
Oui
Consommation énergétique
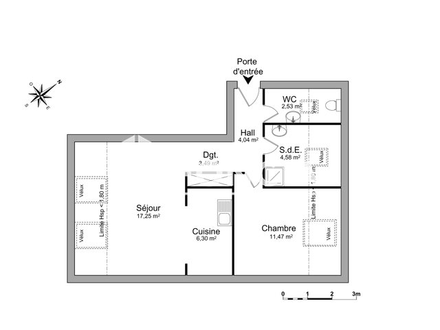
Wissembourg, proche de l? Hôpital, appartement de type 2 pièces situé au 3ᵉ étage de la résidence et comprenant : une entrée, un séjour, une cuisine, une chambre , une salle d?eau, et un wc. Une cave et un garage font également partie de la location.chauffage et eau chaude Individuel Electrique
Source
Fr
Publié le
29 janvier 2026
Vue pour la dernière fois
il y a 5 heures