




Pièces
2 pièces
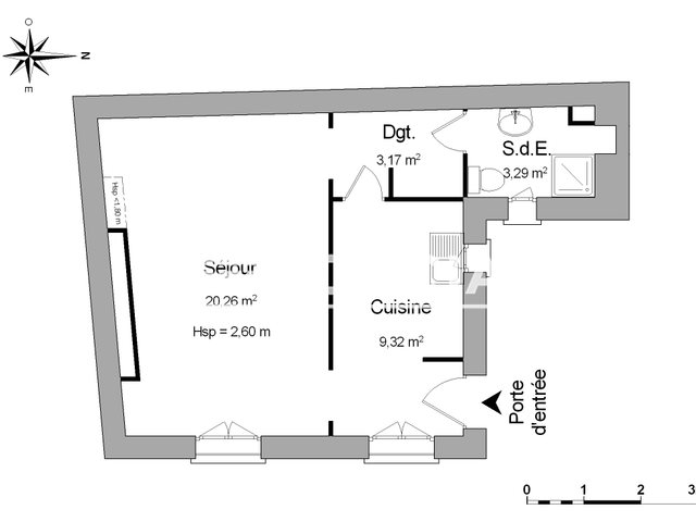
Surface
37 m²
Consommation énergétique
Situé dans un quartier proche de nation dans immeuble en fond de cours. Foncia vous propose ce bel appartement de deux pièces au calme. Il comprends, une entrée, un séjour, une cuisine, une chambre et une salle d'eau avec wc. Chauffage et eau chaude individuel électrique. A ne pas manquer !
Source
Fr
Publié le
20 décembre 2025
Vue pour la dernière fois
il y a 13 heures