



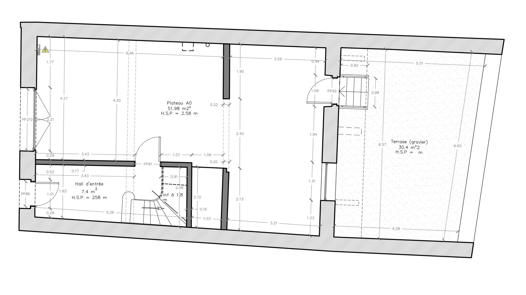
Pièces
2 pièces
Salles de bain
1
Surface
52 m²
Terrasse
Oui
Novea Immobilier vous propose à la vente ce plateau d'environ 52, exposé est au Rdc, d'une bâtisse de 1940 et bénéficiant d'un extérieur privatif de 30m2.Secteur-environnement :Le Parc industriel de la Plaine de l'Ain (plus de 180 entreprises et 8000 salariés) se trouve à 10 minutes.L'accès à l'A42 est à 15 minutes, tout comme les gares ferroviaires d'Amberieu en Bugey et de Meximieux.Nous proposons à la vente des appartements type «?plateaux?», offrant ainsi une grande liberté d'aménagement.Liste des travaux réalisés par le Vendeur : Les renforts structurels nécessaires, renforcement des planchers Les travaux de maçonnerie nécessaires à la création de nouvelles ouvertures, réalisés conformément à la Déclaration Préalable (Dp) acceptée par l'autorité administrative compétente. Les cloisons séparatives entre logements, en cloisons de type Sad. La réalisation des plafonds coupe-feu entre logements et parties communes. La fourniture et la pose des portes palières desservant chaque lot, La mise en place des réseaux communs (eau, électricité, évacuations,télécommunications, ventilation).Concernant les parties communes, travaux réalisés par le Vendeur :Les parties communes seront intégralement réalisées et livrées achevées par levendeur, comprenant notamment : La création et l'aménagement des gaines techniques communes Le contrôle et la mise en place d'un film sous-toiture Circulations horizontales et verticales Accès et halls / Escaliers Réseaux et équipements communs Le cloisonnement complet des cages d'escaliers L'application d'un traitement ignifuge certifié sur l'ensemble des éléments boiscomposant les escaliers. Les travaux de ravalement des façades sont prévus mais ne sont pas inclus dans la présente opération, ils seront réalisés ultérieurement, après remplacement des menuiseries extérieures par les acquéreurs.Les lots sont vendus bruts, sans aménagement intérieur, sans équipement sanitaire, cuisine ni revêtement.Les réseaux privatifs intérieurs aux lots, ainsi que leur distribution interne, sontexclusivement à la charge des acquéreurs.Nous vous proposons un chiffrage pour les travaux d'aménagement intérieur, vous offrant ainsi une solution clé en main.Idéal pour un primo-accédant ou un investissement locatif dans un secteur très demandé, situé rue de la Gare à Lagnieu.N'hésitez pas à me pour plus de renseignements.Honoraires à la charge du vendeur. Dpe en cours. Les informations sur les risques auxquels ce bien est exposé sont disponibles sur le site Géorisques : . Votre conseiller Novea Immobilier Lyon 6 : Fabrice LABEYEAgent commercial (Entreprise individuelle) Rsac Rcp Galian-Smabtp RCACO-Nos honoraires
Source
Gnimmo
Publié le
30 janvier 2026
Vue pour la dernière fois
il y a 3 heures