




Pièces
5 pièces
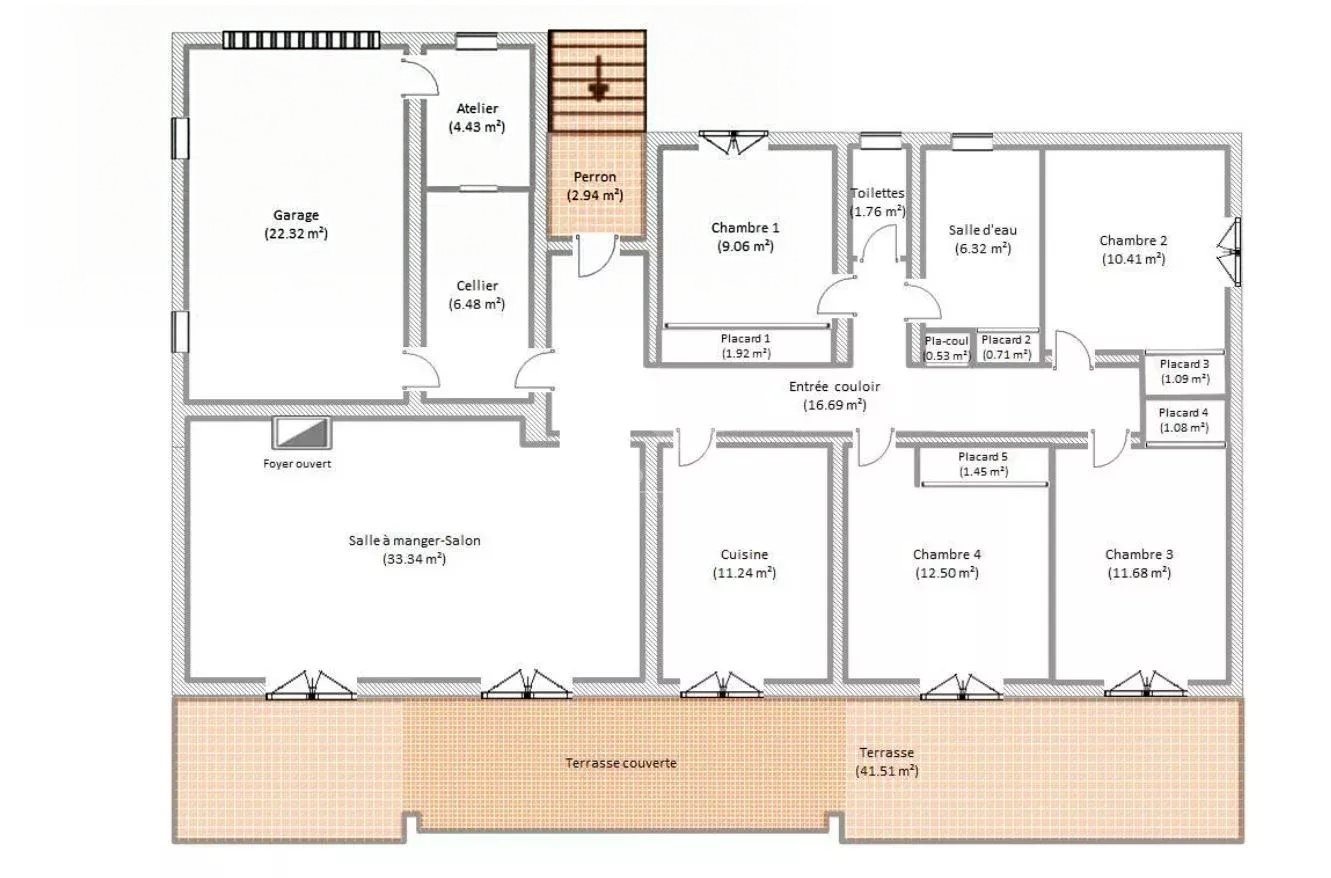
Chambres
4 chambres
Surface
119 m²
Jardin
Oui
Terrasse
Oui
Balcon
Oui
Piscine
Oui
Consommation énergétique
Maison Solaro 121 m² habitables Exclusivité Agence À Solaro (20240), craquez pour cette belle maison de plain-pied de 120m² habitables et pleine de charme ! Elle est située dans un quartier calme et recherché, parfait pour une vie paisible. Sur un terrain arboré de 1700 m² environ, profitez de votre piscine privée pour des moments de détente ensoleillés. À l?intérieur, 4 chambres lumineuses vous accueillent dans un cadre chaleureux et convivial. Un grand garage complète le bien, offrant praticité et confort au quotidien. Vide sanitaire et combles amenageables. Et cerise sur le gâteau : la plage est à seulement 5 minutes ! École primaire à 5 minutes. Lycée et college a 15 minutes avec arret de bus à 5 minutes. Un véritable havre de paix, idéal pour les familles ou pour ceux qui rêvent de tranquillité sans s?éloigner des commodités. Une opportunité à ne pas laisser passer ! €430 500 honoraires inclus | €410 000 hors honoraires | Honoraires : 5% Ttc à la charge de l'acquéreurNos honoraires
Source
Gnimmo
Publié le
21 mars 2026
Vue pour la dernière fois
le 23/03/2026