




Pièces
3 pièces
Chambres
1 chambre
Salles de bain
1
Surface
90 m²
Cave
Oui
Consommation énergétique
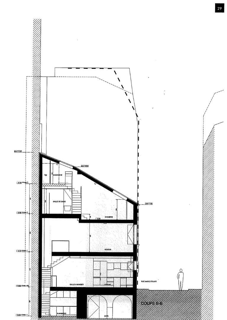
Quartier Montorgueil - Etienne Marcel Maison de ville d'une superficie de 90m2 loi carrez (119m2 au sol), est un bien rare à fort potentiel, répartie sur trois niveaux avec un sous sol. Elle se compose comme suit : au rez-de-chaussée : une entrée, une grande cuisine ouverte aménagée et équipée avec un espace dinatoire, au premier étage : un vaste séjour, au 2ème étage : une chambre parentale avec salle de bain avec Wc et un dressing en mezzanine, au sous sol: une buanderie, une salle d'eau avec Wc, une cave et une cave à vin. Idéalement situé proche de toutes commodités et transports. Avec concierge. Honoraires charge vendeur Les informations sur les risques auxquels ce bien est exposé sont disponibles sur le site Géorisques :
Source
Haussmannprestige
Publié le
20 octobre 2025
Vue pour la dernière fois
il y a 4 heures