




Pièces
2 pièces
Surface
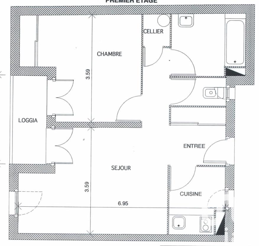
46 m²
Étage
1
Consommation énergétique
Iad France - Nelly Coussi vous propose : À 250m du Tram, quartier Gare Antigone, T2 de 46 m² au premier étage avecbalcon et place de parking couverte. Il se compose d'une pièce de vie, d'une cuisine indépendante, d'une belle chambre, d'une salle de bain, de Wc séparé et d'un dressing. Il est exposé sud ouest, le chauffage est électrique et les fenêtres sont en double vitrage. Idéal étudiant ou premier achat ! La presente annonce immobiliere vise 2 lots situés dans une copropriété de 51 lots au total et ne faisant l'objet d'aucune procédure en cours citée à l'article L. 721-1 du code de la construction et de l'habitation. Montant moyen mensuel de charges déclaré par le vendeur : 93.33€ par mois (soit 1120 € annuel). Honoraires d'agence à la charge du vendeur. Information d'affichage énergétique sur ce bien : classe Energie C indice 140 et classe Climat A indice 4. Les informations sur les risques auxquels ce bien est exposé, y compris l'obligation légale de débroussaillement, sont disponibles sur le site Géorisques : La présente annonce immobilière a été rédigée sous la responsabilité éditoriale de Mme Nelly Coussi mandataire indépendant en immobilier (sans détention de fonds), agent commercial de la Sas France immatriculé au Rsac de Melun sous le numéro , titulaire de la carte de démarchage immobilier pour le compte de la société France SAS.Informations Loi Alur : Soumis au régime de copropriété. Nombre de lots : 51. Quote part annuelle(moyenne) : 1120 euros. Honoraires charge vendeur. (Gedeon )
Source
Iadfrance
Publié le
29 septembre 2025
Vue pour la dernière fois
il y a 5 heures