




Pièces
3 pièces
Surface
76 m²
Étage
2
Ascenseur
Oui
Parking
Oui
Terrasse
Oui
Cave
Oui
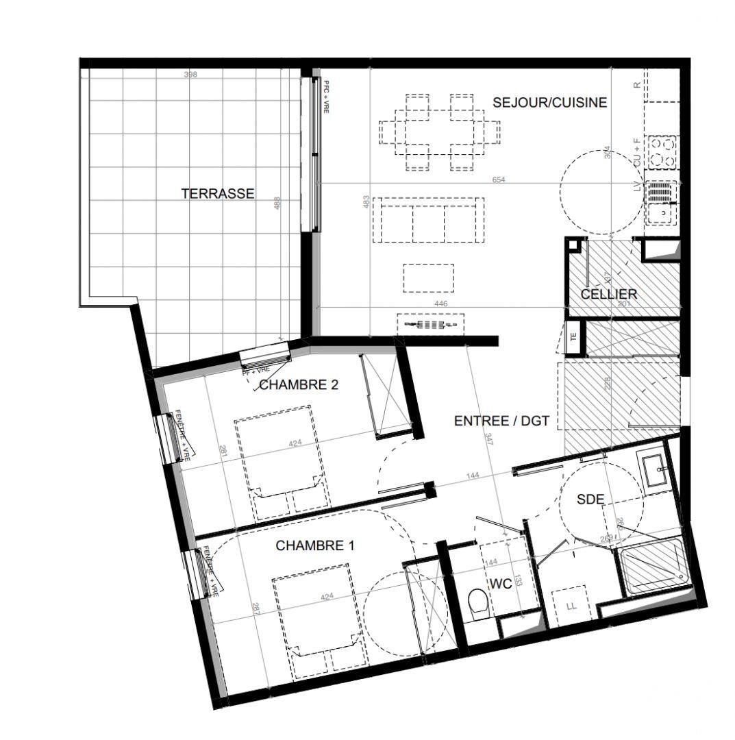
Iad France - Penelope Stoker () vous propose : Appartement T3 avec terrasse et stationnements dans une résidence de standing à Baillargues Situé à Baillargues, dans un environnement résidentiel agréable aux portes de Montpellier, cet appartement bénéficie d’un emplacement recherché à proximité du centre du village, des commerces, des écoles et de la gare Ter permettant de rejoindre Montpellier en quelques minutes. Au deuxième étage, cet appartement T3 offre 75,5 m² environ habitables. L’Espace de vie se compose d’un séjour avec cuisine ouverte de 27,9 m² environ, donnant accès à une terrasse de 19,5 m² environ, idéale pour profiter des journées en extérieur. L’Appartement propose : Deux chambres spacieuses, Une salle d’eau, Un Wc indépendant. Un cellier, offrant un espace de rangement supplémentaire. Le bien est vendu avec deux places de parking en sous-sol sécurisé, un véritable confort au quotidien. Un appartement idéal pour habiter ou investir dans une commune recherchée aux portes de Montpellier. Pour plus de renseignements, n’hésitez pas à me . Honoraires d’agence à la charge du vendeur. Bien non soumis au Dpe. Les informations sur les risques auxquels ce bien est exposé sont disponibles sur le site Géorisques : La présente annonce immobilière a été rédigée sous la responsabilité éditoriale de Mme Penelope Stoker Ei (Id 83102), mandataire indépendant en immobilier (sans détention de fonds), agent commercial de la Sas France immatriculé au Rsac de Paris sous le numéro , titulaire de la carte de démarchage immobilier pour le compte de la société France Sas. Retrouvez tous nos biens sur notre site internet. Loi Alur : Honoraires charge vendeur. (Gedeon )
Source
Iadfrance
Publié le
16 mars 2026
Vue pour la dernière fois
il y a 7 heures