




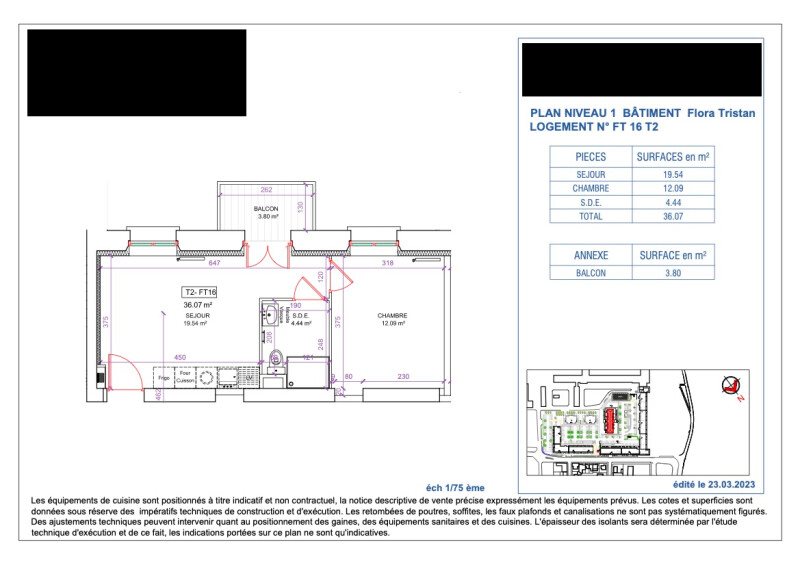
Pièces
2 pièces
Chambres
1 chambre
Salles de bain
1
Surface
36 m²
Parking
Oui
Terrasse
Oui
Balcon
Oui
Venez découvrir, dans votre agence Laforêt immobilier le Touquet-Paris-Plage, cet appartement de 36 m² située à Berck-Plage à seulement quelque pas de la mer !! Il s'agit d'un appartement T2 de 36 m² dans une résidence sécurisée comprenant une entrée un grand espace séjour/cuisine 1 chambre spacieuse une salle d'eau avec Wc ainsi qu'un balcon . Une place de parking est comprise dans ce bien. Plans et documents sur simple demande Pas de frais d'agence/ prix direct promoteur Frais de notaire réduits Garanties décennales LaForet Signature Le Touquet propose plus de 30 programmes sur la Cote d'Opale. Partenaire privilége d'une dizaine de promoteurs, notre conseiller neuf vous accompagne à chaque étape de votre projet.
Source
Laforet
Publié le
1 mars 2026
Vue pour la dernière fois
il y a 2 heures