




Pièces
4 pièces
Chambres
3 chambres
Salles de bain
2
Surface
157 m²
Ascenseur
Oui
Cave
Oui
Consommation énergétique
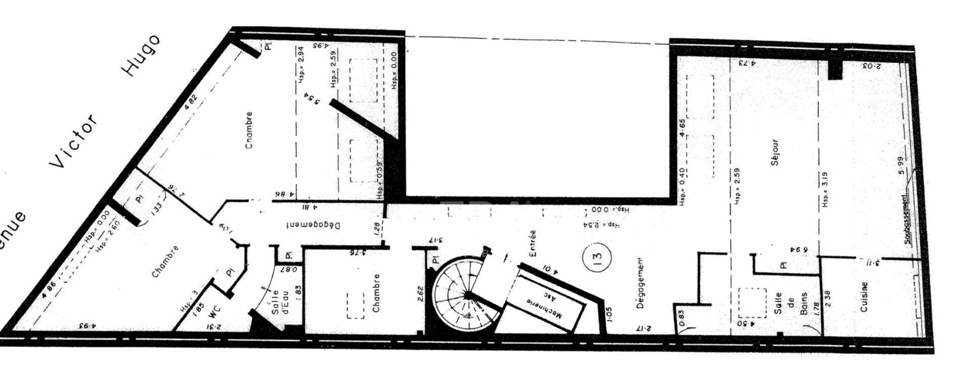
Marcel Sembat - Atypique - Dernier Etage - Sejour 40M²Appartement Familial de 157m² habitable (139m² carrez ) Traversant en Dernier Etage, au pied du métro Marcel Sembat (ligne 9) et des commerces ! Dans une petite copropriété sécurisée des année 80 Avec Ascenseur, il se compose d'une entrée, d'une grande pièce à vivre de 40m² environ Avec Poutres Apparentes, d'une cuisine indépendante (possible cuisine ouverte), de 3 chambres (10m², 18m² et 25m²), d'une salle de bains, d'une salle d'eau et de 2 wc. Une grande cave saine et bétonnée de 18m² complète l'ensemble.Profession libérale possible Thomas Husson (Ei) Agent Commercial - Numéro Rsac : - .
Source
Lamaisondeluxe
Publié le
20 juin 2025
Vue pour la dernière fois
il y a 18 heures