




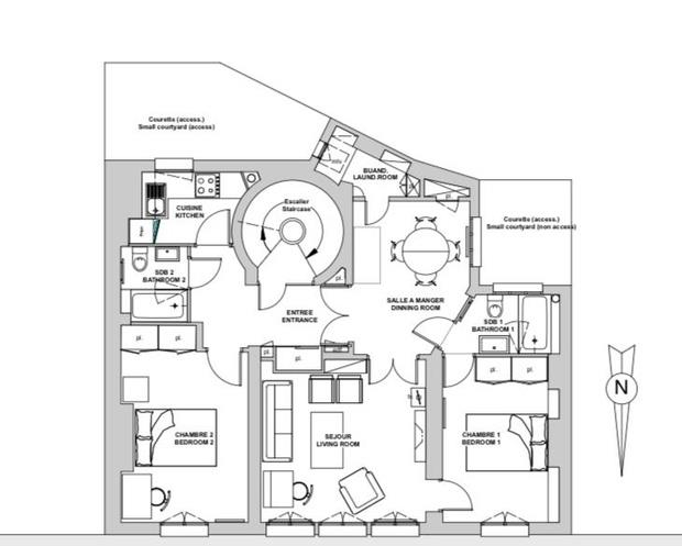
Pièces
4 pièces
Chambres
2 chambres
Salles de bain
2
Surface
73 m²
Consommation énergétique
75014 - Paris - Montparnasse - 4 Pièces - 2 Chambres - 73 m² - Situation Idéale A PARISEffiCity, l’agence qui estime votre bien en ligne, vous propose cet appartement spacieux et lumineux situé au cœur de Montparnasse, dans le 14ème arrondissement de Paris, cet élégant appartement se trouve au quatrième étage d’un immeuble datant de la fin du Xixᵉ siècle. Traversant et baigné de lumière grâce à sa double exposition, il séduit immédiatement par son atmosphère chaleureuse et ses volumes harmonieux. Le double séjour de 26 m², parqueté en point de Hongrie, constitue un espace convivial et raffiné, idéal pour recevoir ou profiter d’instants en famille. Deux chambres bien proportionnées complètent l’ensemble, offrant confort et tranquillité. L’État général est soigné, avec une installation électrique en parfait état et une plomberie entretenue, garantissant un quotidien serein. En complément, deux caves privatives apportent un précieux espace de rangement. L’Adresse est exceptionnelle : entre Vavin et Port-Royal, au croisement de la vie culturelle et artistique de la Rive Gauche, l’appartement bénéficie de la proximité immédiate des commerces, des transports et des espaces verts, tout en préservant une atmosphère paisible côté cour. Alliant le charme de l’ancien et le confort moderne, ce bien rare incarne parfaitement l’art de vivre parisien.Ne manquez pas l'opportunité de visiter cet appartement lumineux et spacieux à Montparnasse. Contactez notre agence dès maintenant pour organiser une visite.
Source
Lamaisondeluxe
Publié le
16 septembre 2025
Vue pour la dernière fois
il y a 15 heures