




Pièces
4 pièces
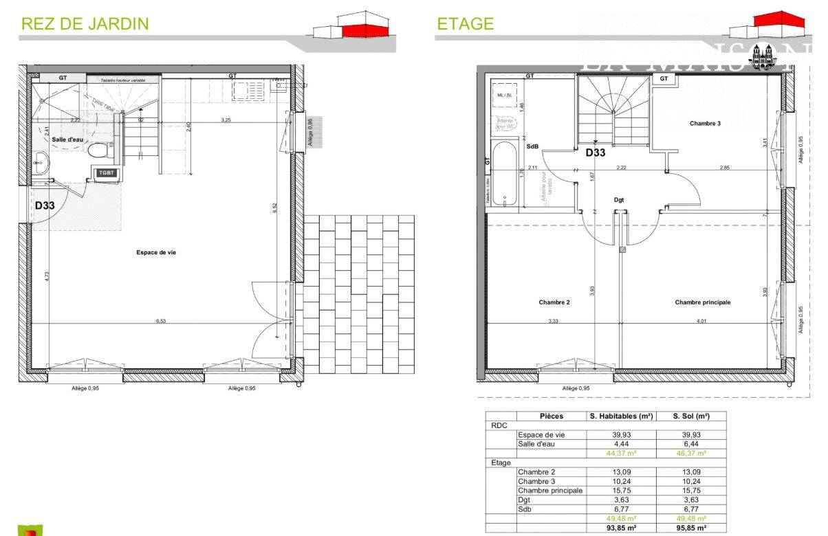
Chambres
3 chambres
Salles de bain
1
Surface
93 m²
Parking
Oui
Terrasse
Oui
Clenay, à 10 mn de Dijon, Programme Neuf, Vente En Etat Futur D'achevement ( Réglementation Re2020) dans un quartier calme, un appartement en duplex de type 4 exposé Sud et Ouest et comprenant :Au rez-de-chaussée : un espace de vie avec coin cuisine, une salle d’eau avec un W.C.Au premier étage : une salle de bain, un dégagement, une chambre principale et deux chambres.Cet appartement bénéficie d'une terrasse privative d'une surface de 11m² environ et d'un jardin jouissance privative avec portillon, d'une surface de 76m² environ, exposé Sud et OuestGarage individuel et place de parking privatif.Proches des commerces et accès autoroute.
Source
Lamaisonglm
Publié le
22 octobre 2025
Vue pour la dernière fois
il y a 6 heures