



Pièces
3 pièces
Chambres
2 chambres
Surface
80 m²
Cave
Oui
Consommation énergétique
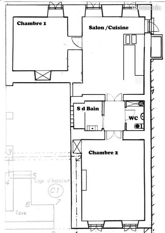
Appartement T3 centre village 80 m² Situé dans un batiment ancien en copropriété (3 locataires), idealement situé avec une cave de rangement (10m²), jardin partagé au calme. Chauffage au sol avec chaudière Gaz dernière generation (entretien suivi). Salle de bain et Wc séparé. Rdc (accés facilité pour personne agée ou Pmr). L'appartement est idéal pour un couple sans enfants ou alors en bas age. Garantie demandé pour la location.
Source
Leboncoin
Publié le
12 décembre 2025
Vue pour la dernière fois
il y a 4 heures