



Pièces
4 pièces
Chambres
3 chambres
Surface
85 m²
Jardin
Oui
Consommation énergétique
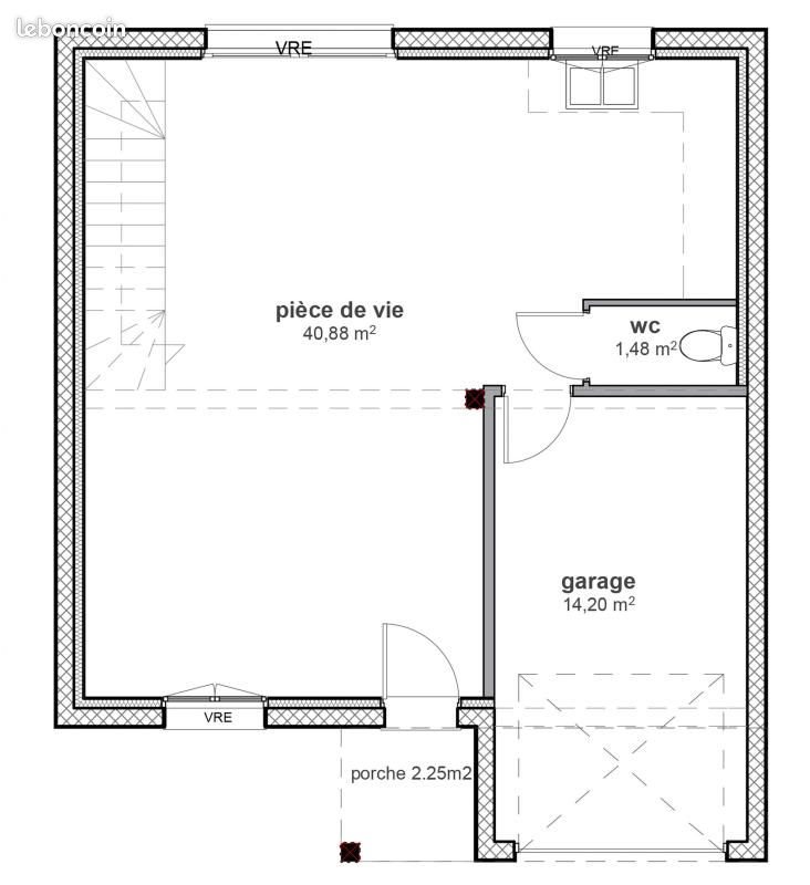
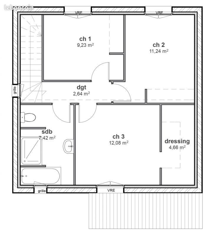
Maison étage 3 chambres avec garage à Laudun- À Laudun-l'Ardoise (30290), dans un lotissement agréable et bien situé, ce projet terrain + maison neuve constitue une belle opportunité pour concrétiser un projet de vie confortable et fonctionnel : implantée sur un terrain viabilisé de 275 m², cette maison traditionnelle à étage de 85 m² à bâtir offre un agencement pensé pour le quotidien avec un espace de vie ouvert et lumineux, une cuisine Us conviviale, 3 chambres, une salle de bains, 2 toilettes et une entrée distincte, le tout complété par un garage de 14 m² idéal pour stationner ou créer un espace de rangement supplémentaire. La situation est particulièrement appréciable avec des écoles accessibles rapidement, des commerces de proximité, des services et des transports facilitant les déplacements vers Bagnols-sur-Cèze, Orange ou Avignon, tout en profitant du cadre de vie paisible de Laudun-l'Ardoise, connue pour son environnement naturel, ses balades le long du Rhône et ses infrastructures sportives et culturelles, un équilibre recherché entre praticité et qualité de vie. -- Nous avons sélectionné ce terrain en partenariat avec nos aménageurs fonciers, dans le cadre d'un projet avec Maisons Bati-France. Maisons Bati-France Mas de Mariotte - Rd Lattes -- Référence annonce : 21250
Source
Leboncoin
Publié le
17 février 2026
Vue pour la dernière fois
il y a 17 heures