



Pièces
2 pièces
Surface
35 m²
Parking
Oui
Jardin
Oui
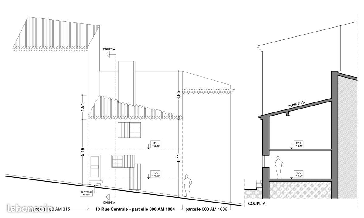
Maison située au centre du village. • Année de construction : environ 1800. • Répartie sur 2 niveaux en R+1. • Environ 35m2 de surface habitable possible (dimensions exactes à confirmer par un relevé). • Petit dégagement en sous-sol. • Le lieu ne permet pas une utilisation en l’état pour un logement, il nécessite une réno- vation totale préalable. Un projet d’agrandissement a été envisagé en janvier 2024 : l’étude de faisabilité préliminaire établie par un architecte présente un potentiel de 60m2 habitable : consiste en la surélévation d'un étage en R+2, conformément aux dispositions du Plu en vigueur dans le village. Le positionne- ment de la parcelle ne permet pas la création d'une place de parking. Documents complémentaires sur demande.
Source
Leboncoin
Publié le
24 février 2026
Vue pour la dernière fois
il y a 3 heures