




Pièces
2 pièces
Surface
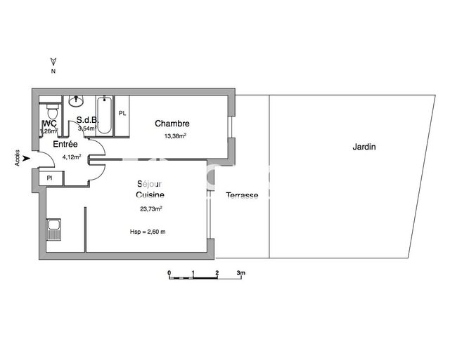
46 m²
Parking
Oui
Consommation énergétique
Dans un quartier calme, appartement lumineux au Rdc, comprenant une cuisine aménagée donnant sur un séjour avec jardinet, une chambre, salle de bain, wc séparé et parking Eau froide collective.
Source
Leboncoin
Publié le
6 janvier 2026
Vue pour la dernière fois
il y a 1 heure