




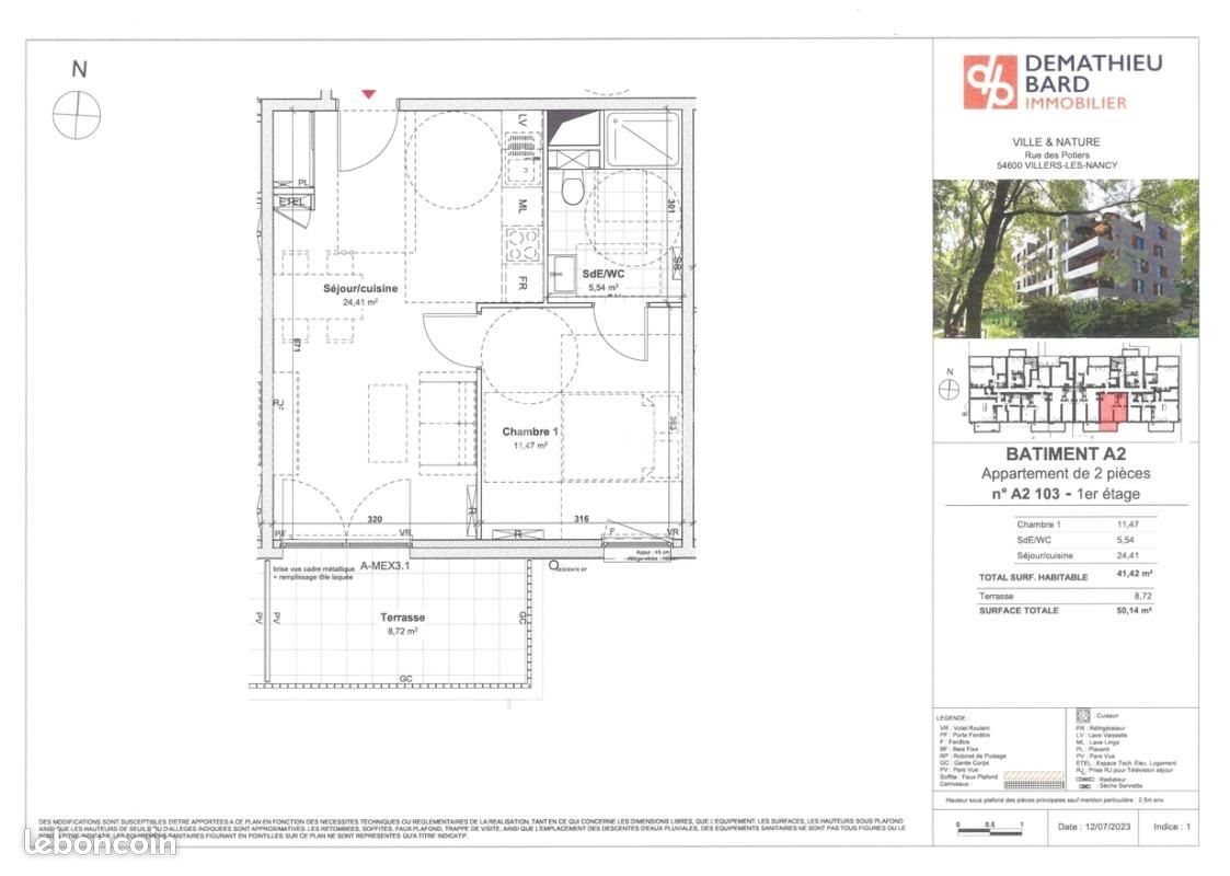
Pièces
2 pièces
Surface
41 m²
Ascenseur
Oui
Parking
Oui
Terrasse
Oui
Balcon
Oui
Appartement Situé Rue Des Potiers - au sein d'une résidence neuve. Ce 2 pièces de 41 m² dispose d'un séjour donnant sur balcon, cuisine aménagée ouvert sur la pièce principale, chambre avec salle d'eau avec wc attenante à la chambre. Cet apparement bénéficie également d'une place de parking privative extérieure. Les provisions chauffage, eau chaude et eau froide, sont comprises dans les charges. Référence annonce : Fl Honoraires à la charge du locataire : 459 € Ttc dont 125 € pour l’état des lieux Dépôt de garantie : 545 € Montant des charges : 90 € / mois A propos de la copropriété : Pas de procédure en cours
Source
Leboncoin
Publié le
22 février 2026
Vue pour la dernière fois
il y a 11 heures