




Pièces
4 pièces
Chambres
3 chambres
Surface
88 m²
Parking
Oui
Jardin
Oui
Terrasse
Oui
Piscine
Oui
Consommation énergétique
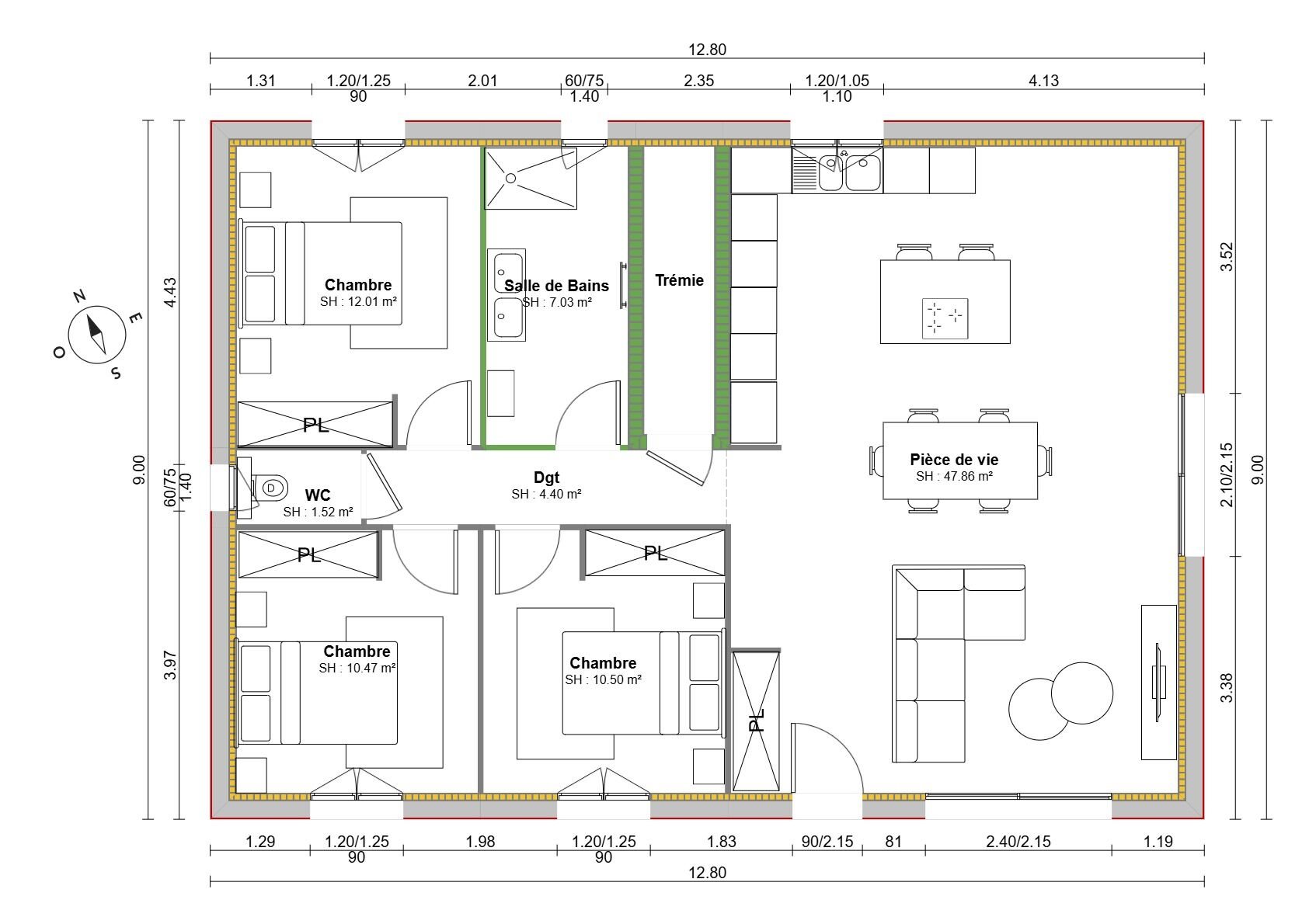
Projet De Construction – Maison 90 m² – Sous-Sol Complet – Monistrol-Sur-Loire Sur la commune très recherchée de Monistrol-sur-Loire, Maisons Punch vous propose ce projet de construction clé en main, idéal pour une famille ou des primo-accédants souhaitant devenir propriétaires dans un environnement privilégié. Implantée sur un terrain de 800 m² légèrement pentu, cette maison individuelle offre un cadre de vie calme, résidentiel et proche des commodités, des écoles et des axes rapides vers Saint-Étienne. Maison fonctionnelle et moderne de 90 m² habitables comprenant : Belle pièce de vie lumineuse avec cuisine ouverte 3 chambres confortables avec espaces placards Salle de bains familiale Wc indépendant Grandes ouvertures pour un maximum de luminosité naturelle Sous-sol complet de 100 m² : Grand garage double Espace stockage / atelier Possibilité d'aménagement selon vos besoins (salle de sport, buanderie, espace bricolage…) Les + du projet : Secteur recherché et dynamique Terrain offrant une belle vue et un environnement nature Maison personnalisable selon vos envies Construction conforme Re2020 (performance énergétique et confort thermique) Accompagnement complet dans votre projet de vie Idéal primo-accédants ou projet familial Projet étudié selon votre budget et vos besoins. Pour plus d'informations et étude personnalisée, contactez Maisons Punch Nadia Galland [Coordonnées masquées] Terrain proposé et vendu par notre partenaire foncier selon disponibilités, le constructeur n'étant pas mandaté pour réaliser la vente du terrain. Prix terrain inclus : 105 000 € Frais de notaire non inclus : € Prix maison inclus : 180 500 € Vrd non inclus : € Hors aménagements extérieurs (extensions, terrasse, piscine etc), papiers peints, peintures, moquettes dans les chambres (tarif en vigueur au 20 mai 2025, modifiable sans préavis, prix variables suivant les prestations souhaitées). Hors frais d'hypothèque. Différents modèles disponibles pour chaque terrain. Assurance Rc professionnelle/décennale/dommage ouvrage groupe Aviva. Garantie de remboursement de l'acompte/livraison à prix et délai convenu Cgi. Partenaire financier : à préciser Le numéro de Tva intracommunautaire : Fr 14 498 627 Contact : [Coordonnées masquées] Référence annonce : 3155 GALLAND Nadia
Source
Lesiteimmo
Publié le
5 février 2026
Vue pour la dernière fois
il y a 2 heures