




Pièces
4 pièces
Surface
90 m²
Consommation énergétique
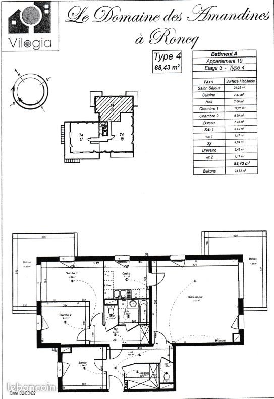
A Vendre - Roncq, rue de Lille. Au dernier étage d'une résidence récente et sécurisée, appartement de 90.45m² habitables – Offrant une entrée avec placard, un salon-séjour de 28 m², une cuisine séparée et équipée (plaque et hotte), une salle de bain avec baignoire et wc séparés. Trois chambres de 10, 11 et 12 m² avec placards dont une avec salle de douche attenante. Deux places de parking. Une terrasse de 17 m² exposée sud-ouest. A deux pas du centre commercial Auchan Roncq, du bois saint Laurent et des axes autoroutiers. Chauffage individuel électrique – Menuiseries pvc double vitrage, volets manuels dans les chambres. Taxe foncière : 1248€. Charges de copropriété : 1800€ / an (eau froide, communs).
Source
Lesiteimmo
Publié le
21 novembre 2025
Vue pour la dernière fois
il y a 4 heures