




Pièces
4 pièces
Chambres
3 chambres
Salles de bain
1
Surface
81 m²
Étage
4
Balcon
Oui
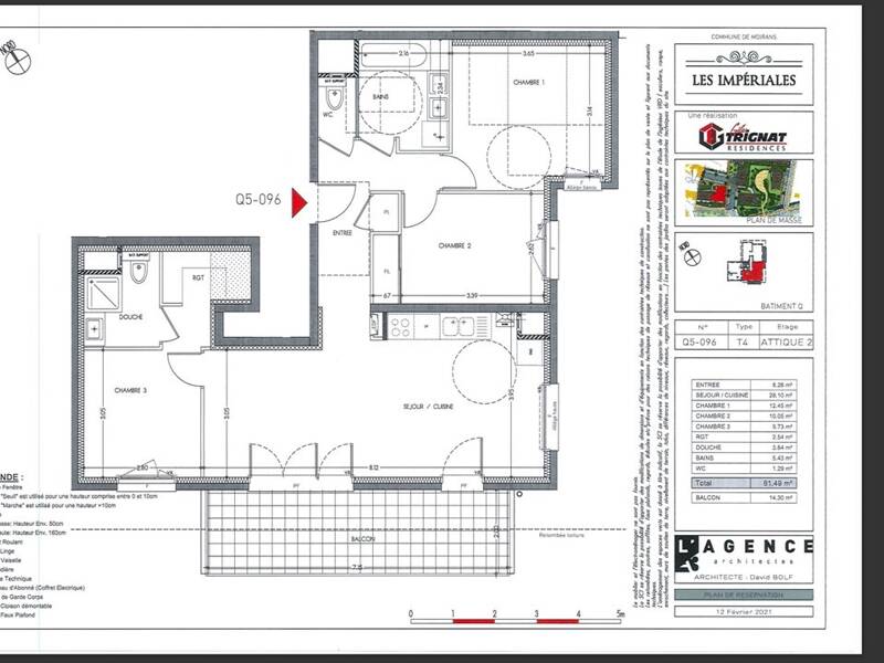
Moirans, rue des Fileuses, nous vous proposons au sein de la résidence de 2023 « LES IMPERIALES LE GALLICA» un 4 pièces de 81.49m² avec garage. Au dernier étage avec ascenseur, il se compose d'une entrée avec placard aménagé, d'une cuisine meublée et équipée ouverte sur séjour de 28.10m², d'une salle de bains, d'un WC, de 2 chambres dont une avec placard et d'une chambre parentale avec salle de douche et dressing. La pièce de vie donne entièrement sur un grand balcon de 14.30m². Un garage en sous-sol d'environ 17m² et loué avec le bien. Les plus du logement : orienté SUD/EST/OUEST, logement lumineux, une salle de bains et une salle d'eau, prestations de qualités. Garage en sous-sol. Le chauffage et l'eau chaude sont individuels au gaz. La résidence est proche de toutes commodités, commerces et écoles, ainsi que des axes routiers principaux. Vous rejoindrez Grenoble en 30min et Voiron en moins de 15 min. Bien soumis à au dispositif fiscal PINEL Loyer charges comprises : 1031.42 € Loyer de base : 976.42 € Provisions sur charges : 55.00 € Dépôt de garantie : 976.42 € Honoraires charge locataire : 651.92 € dont 244.47 € pour l'état des lieux Montant estimé des dépenses annuelles d'énergie pour un usage standard : entre 475.00 € TTC/an et 643.00 € TTC/an. Date de référence des prix de l'énergie pour établir cette estimation : 01/01/2021 (abonnement compris) Les informations sur les risques auxquels ce bien est exposé sont disponibles sur le site Géorisques : géorisques.gouv.fr. La visite du bien pourra être effectuée qu'après présentation de votre dossier de candidature complet.
Source
Logicimmo
Publié le
9 décembre 2022
Vue pour la dernière fois
il y a 1 jour