



Pièces
5 pièces
Chambres
3 chambres
Salles de bain
1
Surface
167 m²
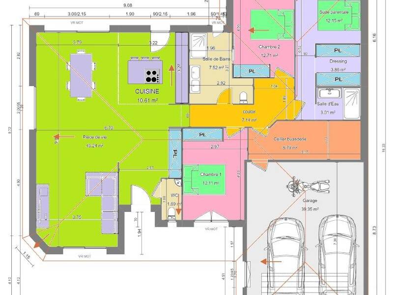
Justine HERDER, de l'agence BRING'S vous propose à la vente cette belle maison neuve de plain pied à Magny. Situé hors lotissement, ce terrain de 8ares, piscinable, est proche de toute commodités. Les plans sont modulables et adaptables à vos critères, possibilité de faire une maison à étage. Le projet présenté se compose d'un vaste salon séjour de presque 50m2, une cuisine ouverte, un WC séparé, une salle de bain avec WC, 3 chambres (dont une étant suite parentale), un cellier, une entrée et un garage deux voitures. Vous bénéficierez de toutes les garanties nécessaires et des nouvelles normes en vigueur: Le respect de la loi N° 90-1129 DU 19 DÉCEMBRE 1990 relative au contrat de construction d'une maison individuelle, Les garanties contractuelles, Le Respect des prix et des délais de construction garantis par le contrat de construction, Garantie du parfait achèvement, biennale, décennale, Garantie financière d'achèvement, Assurance « dommage à l'ouvrage » (10 ans). Respect de la règlementation thermique 2020 (construction BBC). Le prix affiché correspond au projet présenté. Pour toutes informations complémentaires, n'hésitez pas à me contacter Honoraires à la charge du vendeur. Non soumis au DPE. Les informations sur les risques auxquels ce bien est exposé sont disponibles sur le site Géorisques : georisques.gouv.fr. Ce bien vous est proposé par un agent commercial (Entreprise individuelle). Votre conseiller BRING'S-Réseau et agence immobilière Paris : Justine HERDER Agent commercial (Entreprise individuelle) RSAC 849341953 RCP 000000145631097
Source
Logicimmo
Publié le
24 mai 2023
Vue pour la dernière fois
il y a 8 heures