




Pièces
2 pièces
Chambres
1 chambre
Salles de bain
1
Surface
60 m²
Étage
5
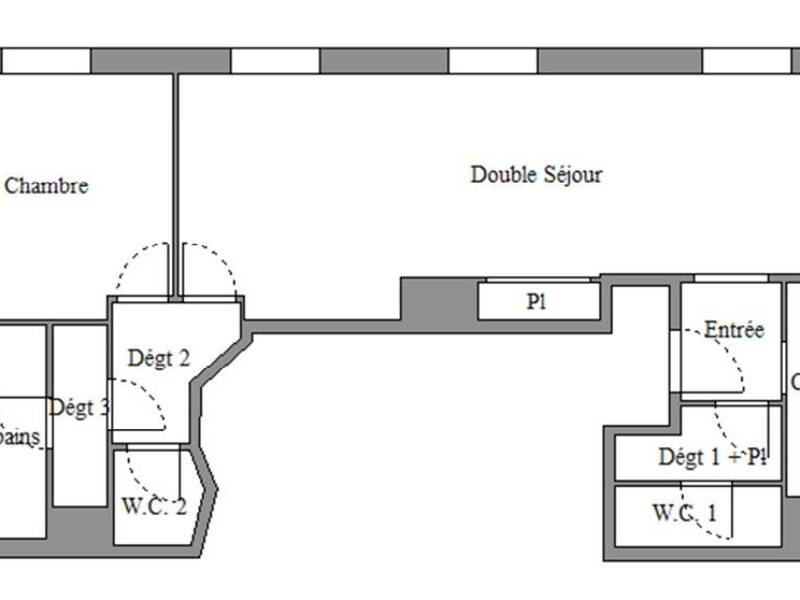
Saint Thomas d'Aquin - Dans la très prisée rue Saint-Guillaume, au dernier étage avec ascenseur d'une superbe copropriété, un appartement d'une superficie de 60,18 m² loi Carrez, agencé en deux-pièces principales donnant entièrement sur jardin. Au calme et baigné de lumière, l'appartement offre une vue dégagée des plus agréables et se compose d'une entrée, un double séjour, une cuisine indépendante, une chambre, une salle de bains, et deux toilettes séparées. Une cave complète ce bel ensemble. Possibilité d'acquérir un parking en sus du prix. Idéal pied à terre ou investissement patrimonial. Bien rare à la vente. Gardien à demeure. Copropriété de 109 lots - dont 38 lots habitation. (Pas de procédure en cours). Charges annuelles : 3420.00 euros.
Source
Logicimmo
Publié le
29 mars 2024
Vue pour la dernière fois
Non disponible