




Pièces
4 pièces
Chambres
3 chambres
Salles de bain
1
Surface
81 m²
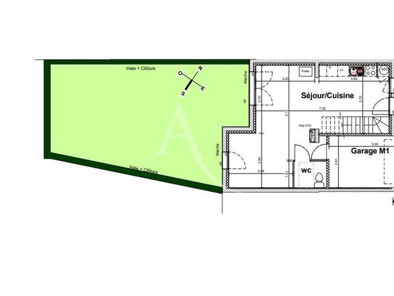
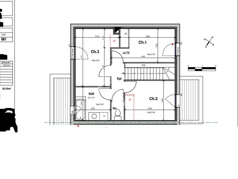
Située idéalement au coeur du quartier prisé du Landreau à Nantes, cette toute nouvelle résidence se compose de 42 appartements et 5 maisons qui séduiront par leur architecture sobre et élégante, s'intégrant harmonieusement dans un environnement principalement pavillonnaire. Une place prépondérante est accordée aux espaces verts, créant une atmosphère de jardin en plein coeur de la ville au sein de la résidence. De nombreux arbres seront plantés, rappelant le caractère arboré distinctif du quartier. L'arrêt de tramway du Landreau est accessible en seulement 5 minutes à pied, vous permettant de rejoindre le centre-ville de Nantes en 20 minutes ou les commerces du quartier en moins de 10 minutes. À moins que vous ne préfériez vous promener au sein du Parc du Grand Blotereau, situé à 5 minutes à pied.. À VENDRE : Maison de type T4 de 81,31 m² avec garage. Elle se compose d'un séjour- cuisine spacieux de 36,77 m² donnant sur un jardin privatif de 65 m², trois chambres à l'étage, d'une superficie allant de 10,29 m² à 11,28 m² (possibilité d'une chambre au rez-de-chaussée), une salle de bains, une salle d'eau et deux WC séparés. Un garage attenant à la maison complète cet ensemble. Label Energie RT2012 Prix: 395 000 € TTC (+ frais notaire réduits 2.5%) Prix direct promoteur REF: 31631-ClosM1 "Les informations sur les risques auxquels ce bien est exposé sont disponibles sur le site Géorisques : " Copropriété de 47 lots - dont 47 lots habitation. (Pas de procédure en cours).
Source
Logicimmo
Publié le
20 avril 2024
Vue pour la dernière fois
Non disponible