




Pièces
5 pièces
Chambres
3 chambres
Surface
125 m²
Étage
5
Terrasse
Oui
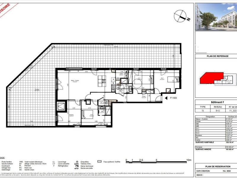
Nouvelle résidence de standing quartier Monselet- Procé à Nantes organisée autour d'un jardin paysagé et arboré en coeur d'ilôt. Appartement du type 1 au type 5. Situé à 8 min à pied du parc de Procé et à 8 min en vélo de la place Graslin ( Théâtre, commerces, bars et restaurants). Transport en commun à proximité ( Bus 26, 54 et tramway Ligne 3 ). A VENDRE exceptionnel appartement terrasse de type 5 de 125,18m² avec splendide terrasse de 161,65m² situé au 5ème étage exposé Sud Ouest. Ce bien se compose d' un séjour cuisine de 41,33m² , trois grandes chambres entre 13m² et 14m² ainsi qu'un bureau de 12,87m², deux salles d'eau dont une privative à une chambre. Deux box fermés complètent ce bien. Label Energie RT 2012 norme PMR (personne à mobilité réduite) Prix: 969 000 € TTC (+ frais notaire réduits 2.5%) Prix direct promoteur REF: 31937MON-F1503 "Les informations sur les risques auxquels ce bien est exposé sont disponibles sur le site Géorisques : " Copropriété de 94 lots - dont 94 lots habitation. (Pas de procédure en cours).
Source
Logicimmo
Publié le
28 juin 2024
Vue pour la dernière fois
Non disponible