




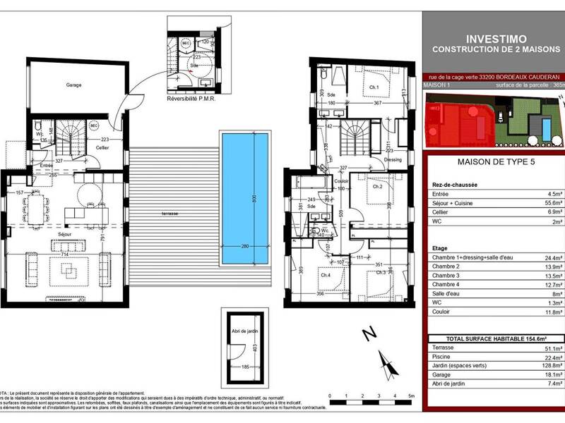
Pièces
7 pièces
Chambres
4 chambres
Surface
155 m²
Terrasse
Oui
L'agence INVESTIMO vous propose cette élégante maison d'Architecte. La situation, Bordeaux Caudéran, proche des transports et des commerces, la qualité des prestations de construction et le choix des matériaux haut de gamme font de cet ensemble un exceptionnel lieu de vie. La maison, érigée sur une parcelle de 365 m2, s'ouvre sur une entrée desservant une pièce de vie , séjour salon cuisine, de 56 m2, un toilette, une salle d'eau, un jardin de près de 150 m2 exposé plein Sud sans vis-à-vis, une terrasse de 50 m2, une piscine et un garage. L'étage se compose d'un couloir permettant d'accéder à une grande suite Parentale de 25 m2, à trois grandes chambres, un toilette et une salle d'eau. DPE A/A Prix de vente, honoraires d'agence inclus, 969.900 Euros. Honoraires à la charge de l'Acquéreur 40.000 Euros TTC Prix net vendeur 929.900 Euros Les informations sur les risques auxquels ce bien est exposé sont disponibles sur demande ou sur le site Géorisques : Contact : Luc Etcheverry (4.30 % d'honoraires TTC à la charge de l'acquéreur.)
Source
Logicimmo
Publié le
17 octobre 2024
Vue pour la dernière fois
Non disponible