




Pièces
5 pièces
Chambres
4 chambres
Salles de bain
1
Surface
111 m²
Étage
15
Terrasse
Oui
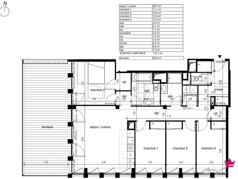
T5 de prestige dans un des bâtiments emblématiques de la skyline Lyonnaise. Au coeur du quartier de la Part-Dieu, 2ème pôle d'affaires français. Paris, Marseille et Genève à 2h par le train, à 30 minutes de l'aéroport Saint Exupery par le tramway Rhônexpress. Créée par un architecte considéré comme l'un des plus doué et visionnaire de sa génération, la résidence s'intègrera parfaitement à son quartier et respectera les labels les plus drastiques en matière d'environnement. L'appartement est un grand T5 de plus de 110m², exposé sud et ouest, baigné de lumière. Le séjour de 29m² donne sur une terrasse de plus de 39m² avec vue dégagée sur Lyon et les jardins suspendus. 4 chambres dont une suite parentale. Beaucoup de rangements, buanderie, 1 salle d'eau équipée, une salle de bains équipée, 2 wc. Il est possible de l'aménager en T4 avec un séjour de plus de 45m² ! Prestations de haut vol : Carrelages grandes tailles, parquets massifs, brises soleil orientables électriques, huisseries aluminium, cloisons isolées phoniquement, wc suspendus, mitigeurs thermostatiques, port d'entrée anti-dégondage à 5 points? Frais de notaire faibles Aménagement intérieur modifiable Fibre optique Une application permettra d'obtenir des infos en temps réel, de communiquer avec d'autres résidents, d'échanger des biens et services, de connaître ses consommations, de piloter le chauffage, les volets et l'éclairage. LABEL BIODIVERCITY LABEL 2EC LABEL NF HABITAT Et si vous donniez corps à ce rêve ? En habitant une nouvelle adresse sans équivalent à l'architecture signée d'un référent mondial et aux appartements au style inspirant. Possibilité d'avoir 2 parkings en sous-sol (33 000 euros/parking, en sus), véritable luxe dans ce secteur. Contactez Vincent pour tout renseignement complémentaire. Merci de laisser vos coordonnées téléphoniques en cas de contact par mail. Pour plus de confort, Lionrose vous accueille téléphoniquement du lundi au samedi de 9h00 à 19h00 ! Copropriété de 95 lots - dont 95 lots habitation. (Pas de procédure en cours).
Source
Logicimmo
Publié le
1 février 2025
Vue pour la dernière fois
Non disponible