




Pièces
3 pièces
Chambres
2 chambres
Salles de bain
1
Surface
80 m²
Terrasse
Oui
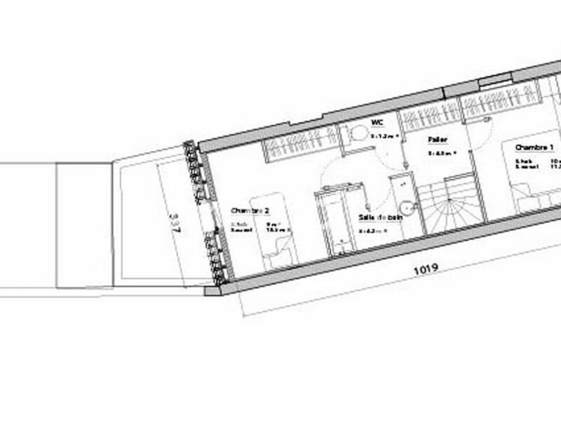
LILLE MAISON R+1 – 71,5 m² AVEC JARDIN – OPPORTUNITÉ RARE ! Efficity Hélène Ponchon, l'agence qui estime votre bien en ligne, vous propose une réhabilitation totale: une maison de 67 m², idéalement conçue pour allier confort et modernité, avec un jardin privatif de 17m² pour profiter des beaux jours et une cave de 27m². À proximité immédiate du Parc Jean-Baptiste Lebas et à quelques pas de la gare Lille-Flandres, La maison se développe en duplex, avec une disposition comprenant au rez-de-chaussée une pièce de vie salle à manger/séjour avec cuisine, et deux chambres au premier étage, ainsi qu'un jardin privatif en cœur d'ilot. Ses atouts : Un espace de vie optimisé : séjour salle à manger de 22m² lumineux et cuisine de 11m² 2 belles chambres à l'étage et un palier central Salle de bains moderne + WC séparé Prestations de qualité aux dernières normes énergétiques Extérieur privatif : terrasse & jardin exposés ouest pour un cadre agréable Situation idéale : proche des commerces, écoles et transports, pour un quotidien facilité ! Ce bien rare ravira les citadins en quête d'un véritable cocon alliant confort, modernité et tranquillité dans l'un des quartiers les plus prisés de Lille. Ne manquez pas l'opportunité de devenir propriétaire de ce petit bijou immobilier. Contactez-nous dès maintenant pour plus d'informations et réserver votre future maison ! Les informations sur les risques auxquels ce bien est exposé sont disponibles sur le site Georisque : georisques. gouv. fr Hélène Ponchon - EI - est Agent Commercial mandataire en immobilier, immatriculé au Registre Spécial des Agents Commerciaux du Tribunal de Commerce de Lille-Métropole sous le n°529374530. Siège social du mandant : effiCity, 48 avenue de Villiers - 75017 PARIS - Société par Actions Simplifiée, société au capital de 132 373,05 euros, immatriculée au RCS Paris 497 617 746 et titulaire de la Carte professionnelle CPI 7501 2015 000 002 025 - CCI Paris IDF - Caisse de Garantie : GALIAN Assurances 89 rue de la Boétie 75008 Paris
Source
Logicimmo
Publié le
6 février 2025
Vue pour la dernière fois
Non disponible