




Pièces
5 pièces
Chambres
4 chambres
Salles de bain
1
Surface
97 m²
Terrasse
Oui
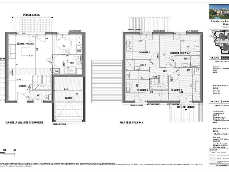
iad France - Hélène Lazaro vous propose : Nouvelle Maison Moderne - Chateau Gombert Venez découvrir cette magnifique maison moderne située dans un quartier prisé de Marseille, offrant un espace de vie confortable et des équipements de haute qualité pour un quotidien facilité et agréable. À quelques minutes des commodités, des écoles et des transports en commun, cette maison est idéalement située pour une vie urbaine pratique. Construite en 2025, cette maison dispose de deux étages offrant une surface habitable de 95.85 m² environ. Toutes les pièces ont été pensées pour offrir un maximum de confort et de fonctionnalité. Avec ses finitions impeccables et son design contemporain, cette maison neuve est prête à accueillir ses futurs propriétaires. Au rez-de-chaussée, vous trouverez un espace de vie lumineux et spacieux, idéal pour installer un salon convivial et une salle à manger accueillante. La cuisine, à aménager selon vos goûts, peut devenir le cOEur de la maison où vous pourrez concocter de délicieux repas. À l'étage, les quatres chambres offrent des espaces confortables pour se reposer en toute tranquillité. La salle de bain moderne vous promet des moments de détente bien mérités. Les équipements modernes tels que le chauffage individuel par convecteurs et l'alimentation électrique assurent un confort thermique optimal tout au long de l'année. De plus, la connexion téléphonique et l'option de câble vous permettent de rester connecté en tout temps. À l'extérieur, une terrasse ensoleillée vous invite à profiter des beaux jours et à vous détendre en plein air. De plus, une place de parking privative est prévue pour garer votre véhicule en toute sécurité. Ne manquez pas l'opportunité d'acquérir cette maison neuve à Marseille, un bien rare alliant confort, modernité et emplacement idéal. Contactez-nous dès maintenant pour organiser une visite. A PARTIR DE 475 000 euros TTC Honoraires d'agence à la charge du vendeur. Bien non soumis au DPE. Les informations sur les risques auxquels ce bien est exposé sont disponibles sur le site Géorisques : La présente annonce immobilière a été rédigée sous la responsabilité éditoriale de Mme Hélène Lazaro EI (ID 86496), mandataire indépendant en immobilier (sans détention de fonds), agent commercial de la SAS I@D France immatriculé au RSAC de Salon de Provence sous le numéro 940022593, titulaire de la carte de démarchage immobilier pour le compte de la société I@D France SAS.
Source
Logicimmo
Publié le
8 avril 2025
Vue pour la dernière fois
Non disponible