




Pièces
4 pièces
Chambres
3 chambres
Salles de bain
1
Surface
108 m²
Terrasse
Oui
Balcon
Oui
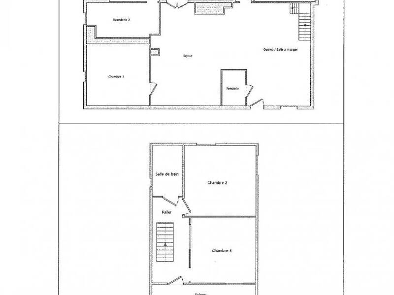
SOUS OFFRE ! MAISON EN R+1 - 3 CHAMBRES - EXTERIEUR - CALME - LA VALBARELLE - 13011 MARSEILLE SOUS OFFRE ! Venez découvrir cette charmante maison de ville d'environ 114 m² au sol et 108 m² carrez, rénovée avec goûts. Cette maison est composé au rez-de-chaussée, d'une très grande pièce de vie de plus de 45m², composée d'une cuisine, d'un séjour et d'un coin salon. Cette magnifique pièce est traversante Est-Ouest. Un poêle à bois installé récemment agrémente la décoration et vous promet de belles soirées d'hiver. A l'étage vous trouverez 1 salle de bains avec WC et fenêtre ainsi que deux jolies chambres. Depuis le palier du 1er étage, une porte fenêtre vous conduit au balcon qui vous permet d'accéder au jardin du rez-de-chaussée d'environ 45m² mais également à la terrasse tropézienne d'environ 55m². Cette maison saura vous séduire par sa luminosité, son calme, et ses deux extérieurs. La taxe foncière s'élève à 1653 euros. Même si cette maison dépend d'une copropriété, vous n'avez aucune charge et un syndic bénévole, ce qui facilite les échanges et prises de décisions. SOUS OFFRE ! Si ce bien attise votre curiosité, contactez-moi pour plus d'informations et envisager d'organiser une visite. Référence agence : 2991
Source
Logicimmo
Publié le
2 juillet 2025
Vue pour la dernière fois
Non disponible