




Pièces
4 pièces
Chambres
3 chambres
Salles de bain
1
Surface
80 m²
Terrasse
Oui
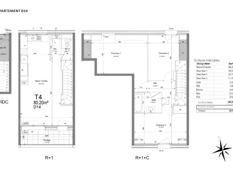
Nouveau à Amiens ! *DEVENEZ PROPRIETAIRE D'UN APPARTEMENT 4 PIECES A AMIENS * //Terrasse //Rangement// Proche du centre-ville// *QUARTIER : Situé à l'ouest d'Amiens, à deux pas du parc de la Hotoie. Le quartier bénéficie de la proximité des écoles, commerces et lignes de bus, et permet de rejoindre le centre-ville en environ 10 minutes en voiture. *LOGEMENT : Cette maison triplex de 4 pièces est composée au rez-de-chaussée d'une entrée avec des escaliers menant au premier étage, où se trouve un WC indépendant, une grande pièce de vie de 26.25m² avec cuisine ouverte et accès à une terrasse de 5.47m². Le second étage se compose de 3 chambres de 10.78m² à 16.59m² et d'une salle de bains. *RESIDENCE LES TISSERANDS : Se situe entre ville et nature, la résidence bénéficie d'un emplacement idéal pour une vie de famille. Contactez-nous dès maintenant ! Les informations sur les risques auxquels ce bien est exposé sont disponibles sur le site Géorisques : georisques. gouv. fr
Source
Logicimmo
Publié le
23 juillet 2025
Vue pour la dernière fois
il y a 9 heures