




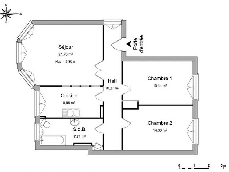
Pièces
3 pièces
Chambres
2 chambres
Salles de bain
1
Surface
77 m²
Étage
1
Situé au 1er étage d'un immeuble bien entretenu, cet appartement rénové se compose d'une entrée, d'un séjour lumineux, d'une cuisine indépendante, de deux chambres, et d'une salle de bains avec wc.Vous bénéficierez également d'une cave en sous-sol et d'un garage privatif, offrant un confort de vie appréciable.Chauffage individuel au gaz.Cet appartement est idéal puisqu'il aillie fonctionnalité, luminosité et emplacement pratique à proximité des commodités.Vous pouvez découvrir l'appartement en détail grâce à une visite virtuelle complète disponible en ligne. Les informations sur les risques auxquels ce bien est exposé sont disponibles sur le site Géorisques : georisques. gouv. fr
Source
Logicimmo
Publié le
27 septembre 2025
Vue pour la dernière fois
il y a 4 jours