




Pièces
6 pièces
Chambres
5 chambres
Surface
108 m²
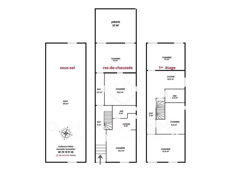
Au cœur de Bordeaux Bastide, à côté de la place Calixte Camelle, découvrez cette ravissante échoppe de 108 m² avec son jardin de ville. Vous serez séduits par la qualité de conservation de certaines prestations ainsi que par la solidité de l'ensemble : toiture en bon état (remaniée en 2023). Des travaux de rénovation sont à prévoir pour révéler tout le potentiel de cette jolie maison. Actuellement composée de 6 pièces principales, elle comprend : • Au rez-de-chaussée : un studio indépendant avec kitchenette, salle d'eau et WC. Côté jardin, un petit appartement T2 avec deux chambres. • À l'étage : accessible par un escalier en pierre, une nouvelle cuisine équipée, trois chambres et une salle d'eau avec WC. • En sous-sol : une vaste cave de 60 m², aujourd'hui non habitable, mais offrant de belles perspectives d'aménagement. Il est possible d'ouvrir les pièces et de moduler les volumes à votre guise. À proximité immédiate des écoles, commerces et praticiens, son emplacement vous permettra de profiter pleinement de la vie bastidienne. N'hésitez pas à me contacter avant qu'il ne soit trop tard ! Visite virtuelle disponible en suivant ce lien : Ce bien vous est présenté par Guillaume Priou, votre conseiller indépendant Dr House Immo.
Source
Logicimmo
Publié le
27 septembre 2025
Vue pour la dernière fois
Non disponible