




Pièces
4 pièces
Chambres
3 chambres
Salles de bain
2
Surface
104 m²
Étage
5
Balcon
Oui
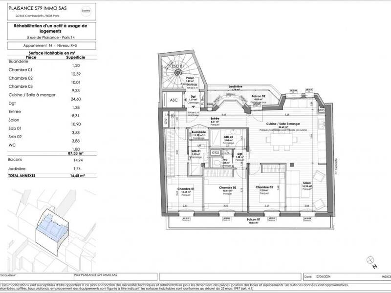
VIR (Vente d'Immeuble à Rénover) : Au 5ème étage avec ascenseur d'un immeuble ancien réhabilité, de très bon standing à deux pas du métro Pernety, au cœur d'un quartier commerçant, un appartement quatre pièces de 87,45m2 loi Carrez comprenant, une entrée, un séjour, une cuisine ouverte aménagée et équipée ouvrant sur un balcon, une buanderie, trois chambres, deux salles de bains et WC séparé. Appartement calme et baigné de lumière. Grand local vélo / poussettes au RDC et caves accessibles par ascenseur au sous-sol. Professions libérales autorisées. Tout le charme de l'ancien avec les avantages des constructions modernes. Création d'espaces extérieurs et végétalisés, pour ainsi contribuer à la qualité des logements, au rafraichissement urbain et la continuité végétale
Source
Logicimmo
Publié le
29 septembre 2025
Vue pour la dernière fois
il y a 19 heures