




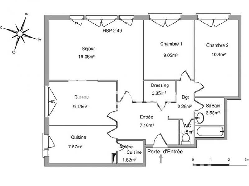
Pièces
4 pièces
Chambres
3 chambres
Salles de bain
1
Surface
73 m²
Étage
6
Spacieux T4 avec vue dégagée, idéalement situé à ToursDécouvrez ce bel appartement familial situé au 6ème étage d'une résidence sécurisée avec gardien. L'entrée avec ses rangements intégrés vous accueille et dessert un agréable séjour lumineux, une cuisine séparée fonctionnelle et trois chambres confortables.Le logement dispose d'une salle de bains complète et de WC séparés pour plus de praticité. Vous apprécierez le confort d'un immeuble avec ascenseur et la facilité de stationnement gratuit au pied de la résidence. Les charges incluent de nombreux avantages : entretien des parties communes, eau chaude, eau froide et chauffage.N'hésitez pas à déposer votre dossier sur notre site internet Foncia au plus vite. Les informations sur les risques auxquels ce bien est exposé sont disponibles sur le site Géorisques : georisques. gouv. fr
Source
Logicimmo
Publié le
2 octobre 2025
Vue pour la dernière fois
il y a 9 heures