




Pièces
3 pièces
Chambres
2 chambres
Salles de bain
1
Surface
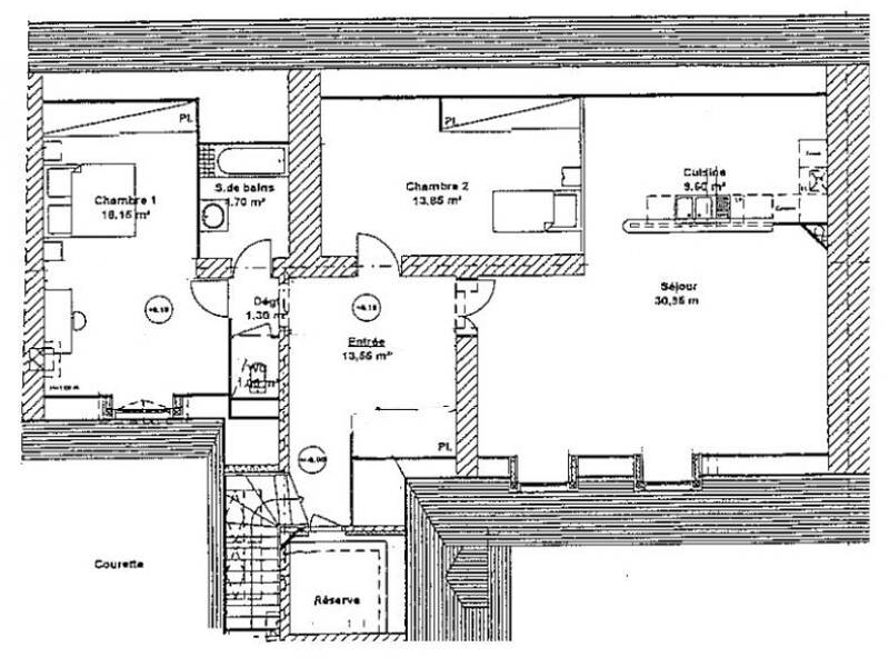
86 m²
A LOUER - NANTES - COURS CAMBRONNE - Appartement 3 pièces 86 m2 (lot 23) - A LOUER - NANTES - GRASLIN - Au coeur du centre historique, cours Cambronne, dans cet résidence de standing et de caractère rénovée en 2003, bel appartement de 3 pièces d'environ 86 m². Situé au 6 ème et dernier étage avec ascenseur sous les combles, ce logement vous offre une entrée avec placard, un séjour avec cuisine américaine aménagée et équipée (plaques de cuisson et hotte), 2 chambres, salle de bains et wc. Chauffage et eau chaude individuels au gaz. Contacter Julie HIEBLOT Le bien est soumis au statut de la copropriété. Loyer de 1 100,00 euros par mois charges comprises dont 113,00 euros par mois de provision pour charges (soumis à la régularisation annuelle). Les honoraires charge locataire sont de 873,00 euros ( soit 10,15 euros/m² ) dont 258,00 euros pour état des lieux ( soit 3,00 euros/m² ). Montant estimé des dépenses annuelles d'énergie pour un usage standard : entre 1 190 et 1 660 euros. Prix moyens des énergies indexés en 2023.
Source
Logicimmo
Publié le
14 octobre 2025
Vue pour la dernière fois
Non disponible