




Pièces
1 pièce
Surface
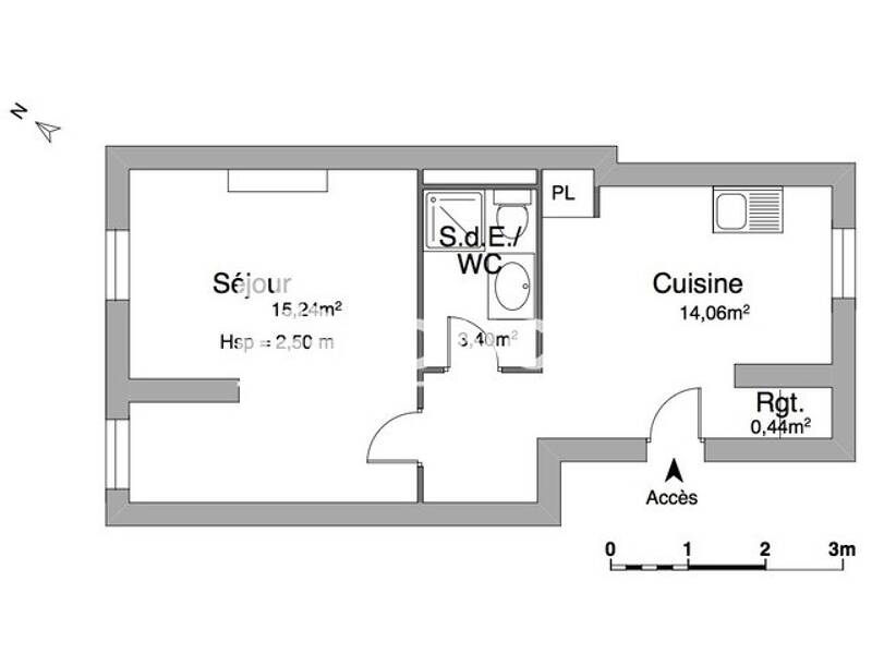
33 m²
Étage
2
À LOUER ? Charmant Studio Bis en plein cœur du centre-ville !Au 2 € et dernier étage d?un petit immeuble sans ascenseur sécurisé avec interphone, découvrez ce studio bis lumineux et bien agencé comprenant :- une entrée avec placard,- une cuisine meublée et équipée,- une agréable pièce de vie,- une salle d?eau et des WC indépendants.Chauffage et eau chaude individuels électriques.Tout à pied ! Commerces et transports à proximité immédiate.Idéal pour une personne seule ou un jeune actif en quête de confort et de praticité ! Assurance Multirisques Privilège *: 10.22 euros / mois *Services facultatifs, voir conditions en agences Les informations sur les risques auxquels ce bien est exposé sont disponibles sur le site Géorisques : georisques. gouv. fr
Source
Logicimmo
Publié le
30 octobre 2025
Vue pour la dernière fois
il y a 23 heures