




Pièces
2 pièces
Chambres
2 chambres
Salles de bain
1
Surface
52 m²
Étage
1
Terrasse
Oui
Balcon
Oui
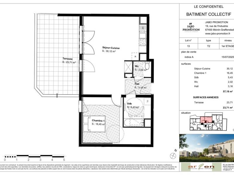
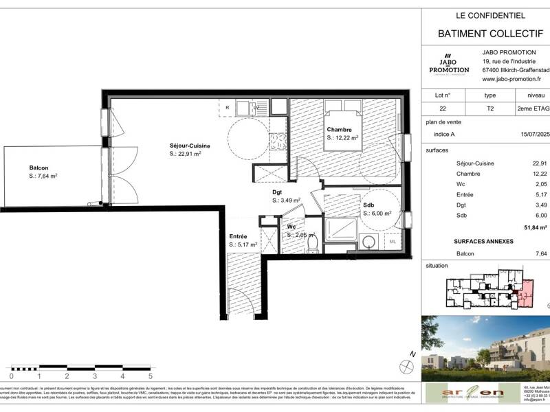
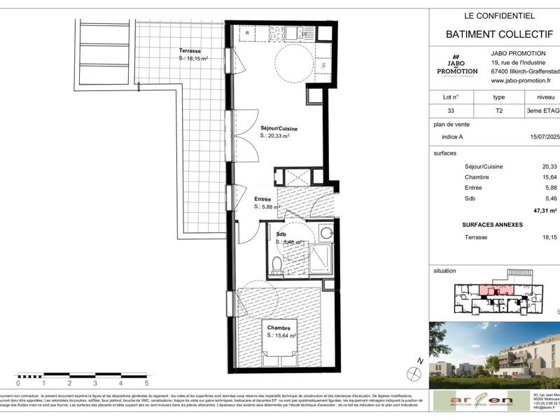
T2 à louer dans résidence neuve. Bâtiment de 3 étages équipé d'un ascenseur ainsi que d'un local vélo. Placard dans l'entrée. Cuisine ouverte sur pièce de vie lumineuse. Salle de douche ou salle de bain équipée d'un meuble vasque et d'un sèche serviette. WC séparés selon le lot. Loggia, balcon ou terrasse. Possibilité de louer une place de stationnement en parking souterrain. Chauffage et Eau compris dans les charges . LOGEMENT 11 1er étage Surface 45m2 Loggia 3,76m2 Loyer 518.16 euros Charges: 165,65 euros TOTAL MENSUEL : 683.81 euros Honoraires de gestion : 0 euros Caution :518.16 euros LOGEMENT 13 1er étage Surface 57,18m2 Terrasse 23,71m2 Loyer 621.76 euros Charges: 196,95 euros TOTAL MENSUEL : 818.71 euros Honoraires de gestion : 0 euros Caution: 621.76 euros LOGEMENT 22 2eme étage Surface 51,84m2 Balcon 7, 64m2 Loyer 579.62 euros Charges: 183,23 euros TOTAL MENSUEL : 762.85euros Honoraires de gestion : 0 euros Caution:579.62 euros LOGEMENT 33 3eme étage Surface 47,31m2 Terrasse 18,15m2 Loyer 607,94 euros Charges: 171,59 euros TOTAL MENSUEL : 779,52 euros Honoraires de gestion : 615,03 euros Caution: 607,94 euros A proximité de l' A35. Merci de préciser le numéro de lot dans votre demande. Soumis au plafond de ressource PINEL et revenus = 3 x loyer charges comprises Pour une mise en relation, merci d'indiquer votre situation familiale, professionnelle et revenus du foyer.
Source
Logicimmo
Publié le
18 novembre 2025
Vue pour la dernière fois
Non disponible