




Pièces
2 pièces
Chambres
1 chambre
Surface
30 m²
Étage
1
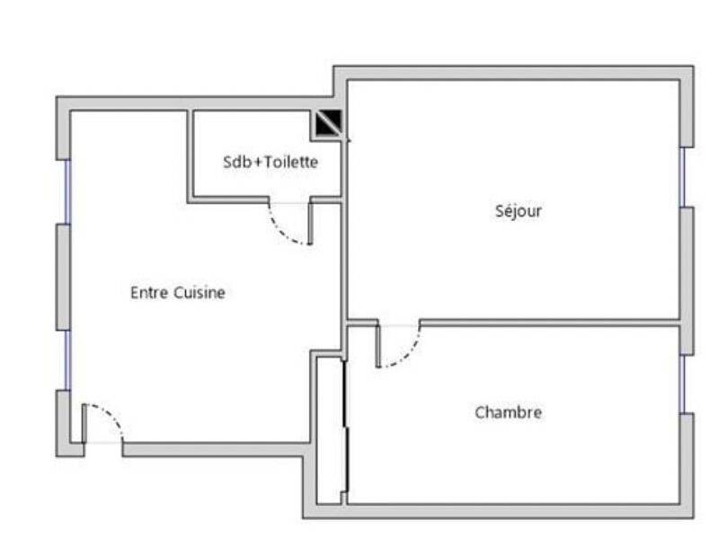
En lisière du 11 € arrondissement de Paris, à seulement 2 minutes des métros Avron (ligne 2) et Alexandre Dumas, SWIXIM vous propose ce 2 pièces situé dans une copropriété ancienne. Au 1er étage (sans ascenseur), l'appartement se compose d'une pièce de vie avec salle à manger et cuisine américaine, d'un séjour donnant sur un jardin calme et fleuri, d'une chambre au calme, également orientée sur le jardin, ainsi que d'une salle d'eau avec WC. Appartement à rafraichir ! À noter : des travaux de copropriété ont été votés mais ne sont pas encore réalisés. Des étais ont été installés temporairement afin de sécuriser le bâtiment dans l'attente de ces travaux. Ses atouts ? Une excellente sectorisation, un quartier recherché et un fort potentiel. Alors une seule chose à faire, contactez moi , je vous accompagnerai pour votre projet immobilier ! La présente annonce immobilière a été rédigée sous la responsabilité éditoriale de Monsieur JAHMAN EI, Agent commercial inscrit au RSAC sous le numéro 830 556 502 Paris. Les informations sur les risques auxquels ce bien est exposé sont disponibles sur le site Géorisques :
Source
Logicimmo
Publié le
20 novembre 2025
Vue pour la dernière fois
il y a 1 jour