



Pièces
3 pièces
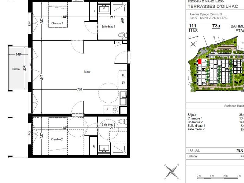
Chambres
2 chambres
Salles de bain
1
Surface
75 m²
Balcon
Oui
Nous vous proposons à la location, au sein d'une résidence intergénérationnelle neuve et sécurisée, un appartement T3 de 75 m².Il se compose de deux belles chambres, chacune disposant de sa salle de bains privative.Le séjour lumineux ouvre sur un balcon exposé Sud/Ouest. Une place de parking complète le bien.Située à 5 min à pied des commerces, cette résidence est conçue autour de la convivialité et des rencontres. Pour assurer la pérennité de son modèle de résidence intergénérationnelle, Erilia s'assure qu'un coordinateur soit au cœur du dispositif pour favoriser l'animation des relations entre les résidents.Contrat à souscrire à la prise du bail : électricitéL'eau est comprise dans les charges.Logement disponible de suiteDépôt de candidature : s à fournir : justificatif d'identité (carte d'identité ou titre de séjour), justificatif de revenus (bulletins de paie, contrat de travail ou attestation de paiement de retraite).Si locataire : trois dernières quittances de loyer + copie de la 1re page du contrat de location.Si hébergé : attestation d'hébergement + copie de la CNI de l'hébergeur + avis d'imposition.Ce logement est soumis à des critères de ressources et à un plafond de revenus. Les informations sur les risques auxquels ce bien est exposé sont disponibles sur le site Géorisques :
Source
Logicimmo
Publié le
25 novembre 2025
Vue pour la dernière fois
il y a 2 jours