



Pièces
5 pièces
Chambres
4 chambres
Salles de bain
1
Surface
81 m²
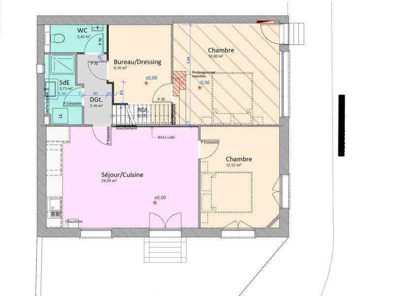
Maison citadine T5 – 114,79 m² au sol - 81,31 m2 de surface habitable Quartier Barrière de paris à 5mn à pied du métro dans un quartier calme et résidentiel. Visites possibles à partir de fin février car en cours de rénovation complète. Disponibilité : début / mi-mars Avec 114,79 m² de surface au sol, la maison se compose comme suit : > Rez-de-chaussée 2 grandes chambres lumineuses 1 bureau / dressing idéal télétravail 1 WC + salle de bains 1 séjour avec cuisine ouverte 1 accès extérieur à une cave sous-sol permettant énormément de rangement. > Étage 2 chambres en mezzanine 1 WC avec lave-mains Honoraires: Loyer hors charges : 1570 EUR Charges : 20 EUR (taxe d'ordure ménagère et contrat d'entretien chaudière) Loyer charges comprises : 1590 EUR Dépôt de garantie : 1570 EUR soit un mois de loyer hors charges Etat des lieux : 244 EUR Honoraires agence : 813 EUR
Source
Logicimmo
Publié le
28 novembre 2025
Vue pour la dernière fois
Non disponible