




Pièces
4 pièces
Chambres
3 chambres
Salles de bain
1
Surface
99 m²
Étage
1
Balcon
Oui
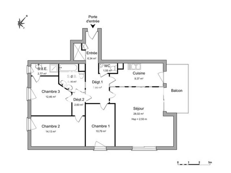
Secteur calme et verdoyant, desservi par les transports en communs, à proximité de la zone commerciale, dans résidence récente bien entretenue, joli appartement au 1er étage (n°10) avec balcon comprenant une entrée avec placard, une cuisine indépendante aménagé et semi-équipé, une pièce de vie, un dégagement, trois chambres dont une avec salle d'eau, une salle de bains, un WC séparé. Une cave et un garage. Chauffage individuel gaz. Les informations sur les risques auxquels ce bien est exposé sont disponibles sur le site Géorisques : georisques. gouv. fr
Source
Logicimmo
Publié le
8 décembre 2025
Vue pour la dernière fois
il y a 1 jour